ラムサス-S工法は、推進管の先端に泥濃式掘進機を装備し、遠隔操作により方向修正を行いつつ、切羽の安定と掘削土に流動性を持たせるために高濃度泥水材を送り、カッターにより掘削された土砂を高濃度泥水材と混合、改良し、掘進機内に組込んだエアー式ピンチバルブを操作することにより土砂の取込量を調整しつつ、取込んだ掘削土砂を推進管内に設置した排泥管内を真空輸送により立坑まで搬出しながら管体を推進し埋設する工法である。
坑外に搬出した土砂は、還流型泥土分離システムを使用し高濃度泥水と土砂とに分離し高濃度泥水は再利用し、分離した土砂は残土として処分する方法と、排土貯留槽を経てバキューム車により直接運搬処分する方法の2通りがある。
還流型泥土分離システム未使用時

還流型泥土分離システム使用時

ラムサス-S工法施工状況写真


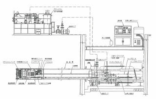
アンクルモール工法は、偏心回転運動を行うカッタヘッドとクラッシャを備えた掘進機を先導体として、元押装置・流体輸送装置、泥水処理装置及び滑材注入装置等により構成されるシステムを用いて、推進管を立坑等からの遠隔操作により推進する泥水式推進工法である。
アンクルモールは、機械全面のスポーク型カッタで地山を掘削し、コーンロータの偏心回転運動により、外側コーンとコーンロータから構成されるクラッシャで、取り込んだ玉石を破砕する掘進機である。
掘削した土砂は、排泥ポンプにより、地上の泥水処理装置まで輸送され、土砂ならびに泥水に分離される。
本工法では、土圧に対しては、推進ジャッキによる元押推力により掘進機前面を地山に押し付け、クラッシャ内に掘削した土砂を充満させて崩壊を防ぎ、地下水圧に対しては、送泥水圧によりバランスをとり切羽の安定を図っている。
掘進機の方向制御は、発進立坑内に据え付けたレーザーセオドライトで推進施工計画線を照射し、掘進機内のターゲットに映るレーザースポットの推進施工計画線からのズレをテレビカメラで常時モニタしながら、掘進機内の方向修正ジャッキを操作することにより行う。


アンクルモール工法施工状況写真


アンクルモールミニ工法施工状況写真


アンクルモールスーパー工法は、岩盤、転石、玉石を含む地盤およびこれらの土質に砂質土、粘性土を含む互層地盤を推進する工法である。さらに、掘進機の方向制御機構として、新開発の反射型方向誘導装置(RSG)を採用し、高精度推進が可能である。
岩盤(一軸圧縮強度200MN/㎡程度まで)の掘削システムは、ローラカッタを装着したカッタヘッドを切羽に圧着させ、同心円の切込みを描きながら回転することで岩盤を圧砕する。圧砕され細片になった岩石は、カッタヘッド前面にあるスクレーパにより開口部から機内に取り込まれ、偏心運動を行うコーンクラッシャの強力な破砕力により、クラッシャの土砂排出口のスリット通過可能な大きさになるまで順次破砕され、流体輸送により坑外に排出される。


アンクルモールエル工法は、偏心回転運動を行うカッタヘッドとクラッシャを備えた掘進機を先導体として、元押し装置・流体輸送装置・泥水処理装置及び滑材注入装置等により構成されるアンクルモール工法のシステムを基本としており、推進管を遠隔操作により推進する泥水式推進工法である。
本工法は、アンクルモールの性能を損なうことなく、呼び径600,700についてはより長距離施工を、呼び径800~1000についてはより長距離急曲線施工を可能にした工法である。


アンクルモールV工法は、偏心回転運動を行うカッタヘッドとクラッシャを備えた掘進機を先導体として、元押し装置・流体輸送装置・泥水処理装置及び滑材注入装置等により構成されるシステムを用いて、推進管を遠隔操作により推進するアンクルモール工法の特長をそのまま生かし、且つ小型の円形発進立坑より推進を可能にした低耐荷力方式泥水式(一工程式)推進工法である。したがって、硬質塩化ビニル管の内側に推力管(推進力伝達ロッド)を包含する。この推力管により元押し装置からの推力を掘進機に伝達する。
アンクルモールV工法施工状況写真



コブラ工法は、全土質地盤に対応して安定掘削できるよう、あらゆる場合を想定し可能な限りノントラブルにて施工できるよう設計された工法である。
掘削方式は、掘進機に泥水(清水)及び泥土圧方式の複合掘進機能を搭載し、掘削地盤に対し地上付帯設備の交換により、双方の掘削方式を使用可能としている。
掘進機の前部にはチップインサート型トリコンビットを採用し、駆動部にはこのクラス最大級のカッターモーターを標準装備するなど、硬質な岩盤から玉石、転石土などあらゆる土質に対応可能とし、マイコンを使用した姿勢制御装置などの機能を搭載している。
コブラ工法施工状況写真



ベル工法は、小口径硬質塩化ビニル管を対象にした泥水方式一工程式の推進工法で、長距離(250m) 曲線(60mR) 施工を可能にした工法であり、直線施工用のV型、曲線施工用のVC型に区分される。
ベル工法は、推進管と地山との周面抵抗力が推進管の許容耐荷力より下回る本数ごとに、元押ジャッキからの推力を伝達するインナー装置に設置された支持装置で支持する方式を採用することにより推進延長は推進管の耐荷力に制限されることなく、長距離施工を可能としている。
測量については、VC型では、光学式ジャイロ及び加速度計を搭載した自走式計測ロボットを採用し、V型では、レーザー方式を採用している。
施工では、VC型では、掘進機の後部にポンプ筒及び測量筒とステーション関連機器搭載管を接続後、推進管を接続する。V型では、掘進機の後部にポンプ筒および測量筒を接続後、推進管を接続する。推進管内には、送排泥管、滑材注入ホース、水ホース及び電線ケーブルを配したインナー装置を挿入し、順次接続して立坑まで掘進到達する方式を採用している。
掘進時の方向制御は、VC型では、自走式計測ロボット等による自動測量システムの計測結果を操作盤の画面で確認しながら掘進機に装備した方向修正・曲線造成ジャッキを遠隔操作する方法で制御を行う。V型では、発進立坑から照射するレーザー光を基に測量筒に搭載した二枚のターゲットをカメラで確認しながら、掘進機方向修正ジャッキを操作する方法で制御を行う。
ベル工法V型システム図

ベル工法VC型システム図

ベル工法施工状況写真


ミクロ工法は、平成8年の開発以来、都市基盤整備に必要不可欠な工法として、数多くの実績を積み、旧来からの泥水方式二工程式の30R型に加え、小型立坑での発進・到達が可能な泥水方式一工程式のNA型により、小口径長距離・急曲線の需要にも対応可能である。
NA型全体システム図

30R型全体システム図

ミクロ工法施工状況写真


スピーダー工法は、仮管併用二工程方式を基本としており、一工程目が仮管圧入方式で二工程目がオーガー掘削方式となる。
一工程目で先導体(スピーダーヘッド)最前部に装着された高輝度発光ダイオードをセオドライドにて計測しながら、斜切りヘッドによる土質アンバランス方式にて方向修正を行い、鋼製の仮管(リード管)を到達立坑まで圧入推進する。
二工程目は仮管(リード管)を案内として、推進ジャッキにより推進力伝達ロッド(スクリュー)に推進力を負荷し、先端抵抗力を負担、低耐荷力管には土の管外面抵抗のみを負担させ、拡大カッターヘッドを用いて掘削を行い、スクリューコンベアにより発進立坑に排土しつつ、低耐荷力管を推進し埋設する方式である。


スピーダー工法施工状況写真


ホリゾンガー工法は、高耐荷力方式・オーガ方式一工程式に分類される工法である。各種掘削ヘッドにより軟弱地盤から軟岩層まで施工可能である。管種別では、ヒューム管、鋼管、ダクタイル管、FRPM管、陶管など各種の管種についての実績があり、下水道以外にも水道管、電力、通信線用埋設管、ガス管、農業用排水管、パイプルーフ工法などに用いられている。
ホリゾンガー工法施工状況写真



本工法は、土留めとなる専用ケーシングを地中内に揺動圧入しながら専用掘削機にて内部掘削を行う。
地下水位面以下は水中掘削とし、底部には水中でコンクリートを打設して立坑を構築する。このため、低騒音・無振動・迅速かつ安全な施工が可能である。
エルモール工法

エルモール工法施工状況写真


二重管ストレーナ工法(単相式)
二重管ロッドを用いて所定深度まで削孔した後、瞬結性薬液に切り替え内管・外管に各々送液し、口元で混合すると同時に地盤に圧送する。
短いゲルタイムで硬化する薬液を使用するため、注入した薬液が広い範囲に拡散することがなく、限定された範囲内で固結し高い注入効果を上げることができる。
二重管ストレーナ工法(複相式)
二重管ロッドを用いて所定深度まで削孔した後、瞬結材によるグラウトパッカ注入を兼ねた一次注入を行い、ロッド周辺のシール及び水みちや粗い地層に薬液を充填し地盤の均質化を図る。
次いで、中結~緩結材による二次注入を同ステップで行い、限定された範囲内で土の構造を破壊することなく土粒子の間隙に注入材を均質に浸透させることによって、より確実な注入効果を上げることができる。
※左右にスクロールしてご覧いただけます
| (1)二重管ストレーナ (単相式) |
地盤全域に適用できるが、特に緩い砂層及び粘性土に適する。 | 所定の注入範囲外への拡散を防止し、限定された部分に薬液をとどめることを目的とした短いゲルタイムの注入方式である。 軟弱で複雑な沖積地盤では、薬液の拡散を防止しつつ、密実にむら無く注入させる事により、より効果的な注入が可能となる。このため、締り具合の弱い地盤や土被りの浅い箇所での注入に適するが、よく締った砂地盤等では、浸透性に限界がある。 混合方式は、2ショット。 |
|---|---|---|
| (2)二重管ストレーナ (複相式) |
地盤全域に適用できる。特に中位~良く締った砂層や比較的粘性土を含む砂層等に適する。 | この方式は短いゲルタイムで薬液の拡散を防止する一方、長いゲルタイムの薬液で地盤のより小さな間隙に浸透させるのを目的としたものである。 比較的よく締った地盤や粘性土を多く含む砂質地盤では、短いゲルタイムを使用した注入では効果にむらが生じるケースもあり、このような場合には、中~長いゲルタイムと短いゲルタイムとの組合せの注入がより効果的な注入が出来る。 混合方式は、1.5・2ショットのいずれでも良いが、一般には短いゲルタイムを2ショット、長いゲルタイムを1.5ショットで行っている。 |
| (3)ダブルパッカ | 砂質系地盤全域に適する。 | この方式は長いゲルタイムの薬液を小さな注入速度でゆっくり注入することにより、より均質な改良を可能とする。 (1)・(2)の方式に比較して、注入工費が割高で工期が長くなる問題はあるが、低い圧力で注入可能であることから、重要構造物の直下や埋設物に非常に近接した位置での注入では、最もそれらに対する影響を少なく施工できる。 混合方式は、1ショットが普通。 |
二重管ストレーナ工法(単相式)

二重管ストレーナ工法(複相式)

二重管ストレーナ工法施工状況写真

